Продається квартира Полтавська, Полтава, Київський, Крамського вул. (№ 213-255-152)

Ціна: 36 400 $
Характеристики
| Ціна: | 36 400 $ |
|---|---|
| № об'єкта: | 213-255-152 |
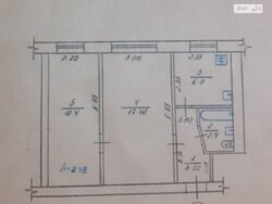
| Кімнат: | 2 суміж |
| Поверх: | 1 / 4 |
| Площа: | 42 / - / 5 м2 |
Адреса: Полтавська, Полтава, Київський, Крамського вул.
Готові до комунікацій з приводу ціни.
Продаю квартиру в Київському районі Полтави.
1 поверх 4 поверхового будинку. Цегла.









